Sporthalle Seefeld
Quartier Zürich-Mühlebach
5/2025

Leistungen
Gesamtplanung Architektur| Landschaftsarchitektur | Tragwerksplanung | Konzeptentwicklung | Nachhaltigkeitsstrategie | Kostenkontrolle
Umfang
Ersatzneubau Schulanlage Seefeld Zürich-Mühlebach | Zwei BASPO-Sporthallen | Mehrzwecksaal und Mensa | Betreuung für Tagesschule Riesbach | Musikräume für Konservatorium Zürich | Nachhaltiger Schulbau mit geringem Energiebedarf | Erhalt von Baudenkmal 1853 und Baumbestand
Ausgangslage
Aufgrund wachsender Schülerzahlen und der Einführung der Tagesschule besteht im Schulkreis Zürichberg ein hoher Flächenbedarf für Schul- und Sportanlagen. Deshalb soll die Schulanlage Seefeld im Quartier Zürich-Mühlebach um zwei BASPO-konforme Einfachsporthallen, Verpflegungs- und Betreuungsräume sowie Unterrichtsflächen der Musikschule Konservatorium Zürich erweitert werden. Das denkmalgeschützte Schulhaus aus dem Jahr 1853 und der ortsbildprägende Baumbestand bleiben dabei erhalten. Gesucht wurde ein nachhaltiger Ersatzneubau, der architektonische Qualität, ökologische Effizienz und funktionale Flexibilität vereint und einen zukunftsorientierten Schulstandort mit hoher Aufenthaltsqualität im Zürcher Quartier Mühlebach schafft.
Konzept
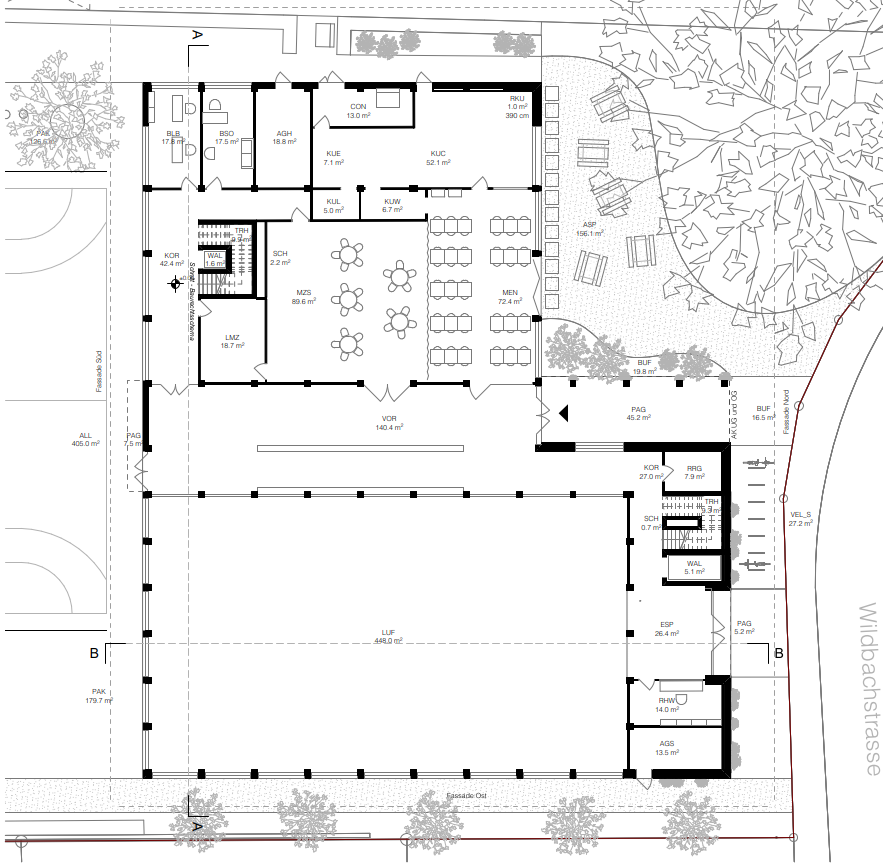
Wurzelgrund, der neue Schul- und Sportkomplex im Zürcher Quartier Mühlebach, definiert den Seefeld-Campus als zeitgemässe und nachhaltige Lernumgebung innerhalb des Zürcher Schulraums neu. Als Ersatzneubau und Erweiterung der bestehenden Anlagen vereint das Projekt zwei präzise gesetzte Holzbauten: einen zweigeschossigen Schultrakt mit Dachspielplatz sowie eine vertikal organisierte, BASPO-konforme Sporthalle mit zwei übereinanderliegenden Einfeldhallen. Eine erhaltene Platane bildet den räumlichen Ankerpunkt für Unterricht, Musik, Betreuung und Sport auf dem gesamten Campus.
Im Inneren unterstützt eine klare Abfolge von Klassenräumen, Gemeinschaftsbereichen und fliessenden Erschliessungszonen einen zeitgemässen Schulbetrieb. Eine geschützte Erdgeschossachse verbindet Unterrichtsräume, Tagesbetreuung und die angrenzende Sporthalle und ermöglicht effiziente Wege auf dem Seefeld-Campus. Der Dachspielplatz schafft zusätzlichen Aussenraum und stärkt den kompakten Schulstandort im dichten Zürcher Stadtkontext.
Mit seiner vorfabrizierten Schweizer Holzbauweise präsentiert das Projekt Wurzelgrund energieeffiziente und CO₂-arme Schularchitektur aus Holz. Durch ihre differenzierten Fassaden mit horizontalen und vertikalen Holzelementen erhält die Schule eine ruhige und präzise Identität. Als Bildungsprojekt nach Minergie-P-Standards geplant, unterstreicht Wurzelgrund den Anspruch der Stadt Zürich an eine widerstandsfähige, ressourceneffiziente und nachhaltige Bildungsinfrastruktur.






Landschaft-sarchitektur
Die Landschaftsarchitektur von Wurzelgrund versteht den Seefeld-Campus in Zürich-Mühlebach als klimaangepasste Lernlandschaft. Der historische Schulgarten wird gestärkt, indem Gemüsebeete, Blühflächen und offene Lernzonen zu einer klaren räumlichen Struktur neu geordnet werden, die den pädagogischen Alltag unterstützt. Unter der erhaltenen Platane verbindet ein grosszügiger Aufenthalts- und Essbereich die Mensa mit dem Aussenraum und bildet einen sozialen Ankerpunkt des Zürcher Schulstandorts.
Neue Spiel- und Lernlandschaften nutzen natürliche Materialien, grosszügige Verschattungen und fliessende Übergänge zwischen Gebäuden und Freiräumen. Die Dachfläche erweitert diese Landschaft vertikal und schafft einen zusätzlichen Aussenklassenraum mit eigenständigem Mikroklima.
Wassergebundene Beläge, hohe Bodenspeicherkapazitäten und eine dezentrale Regenwasserbewirtschaftung setzen eine Schwammstadt-Strategie um, die Kühlung, Versickerung und klimatische Resilienz verbessert. Totholzstrukturen, Insektenhabitate und biodiversitätsfördernde Pflanzungen erhöhen die ökologische Vielfalt auf dem kompakten städtischen Grundstück und machen Wurzelgrund zu einer klaren Referenz für Landschaftsarchitektur in Zürich.

